Aménagement extérieur Nantes

Roches Grises

Rénovation d'une Villa d'exception et classée à Nantes - 500m2

Cette propriété prestigieuse de près de 500 m2, inscrite au patrimoine nantais, domine la plus belle rivière de France.
Ses nouveaux propriétaires souhaitaient un intérieur à leur image, tout en préservant le cachet, l’âme et le caractère de la villa. Nous avons ainsi redonné vie aux parquets et boiseries cachées, valorisé et accentué les moulures, travaillé avec des produits de qualité et des matériaux nobles. Une rénovation haut de gamme, dans une ambiance douce et luxueuse.

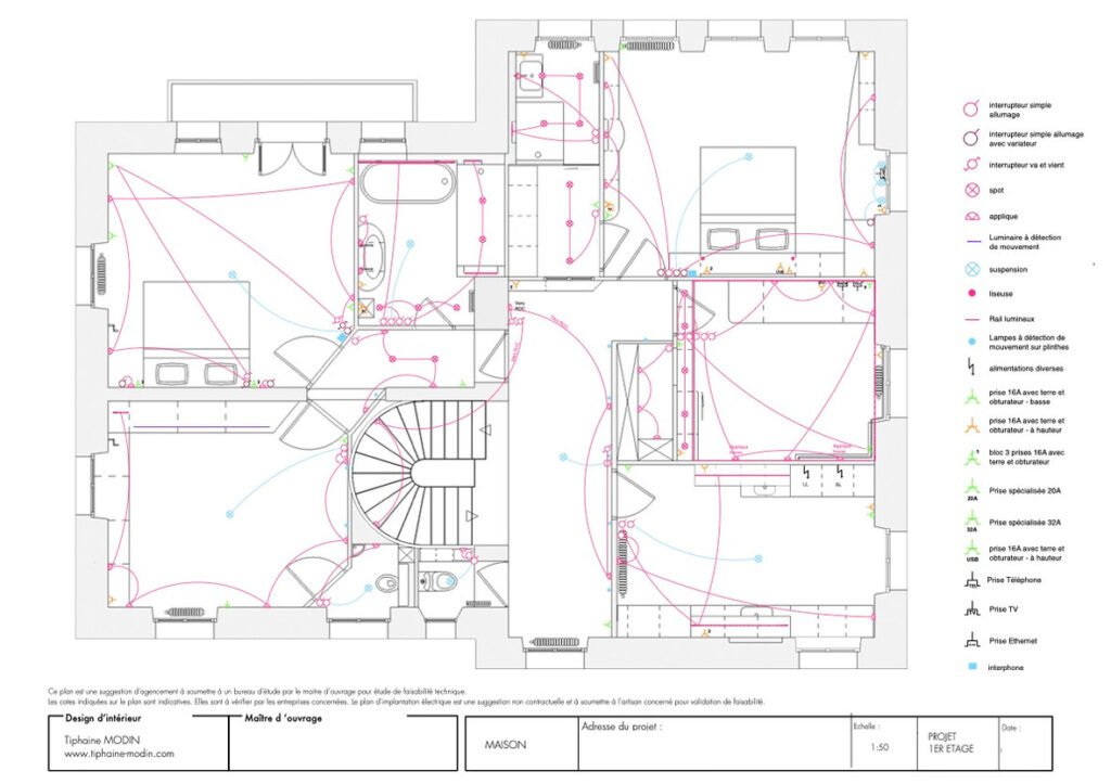
Esquisses et plans
avant