Aménagement extérieur Nantes

PLANS 2D

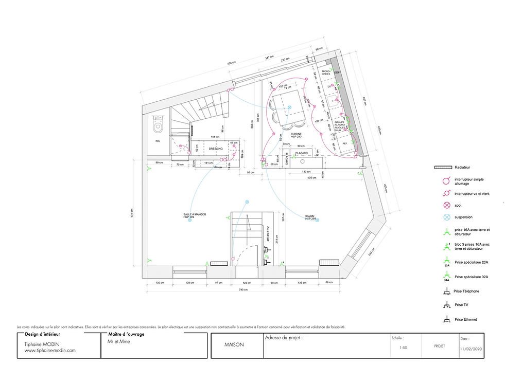
CRéATION DE PLANS OU RECONSTITUTION DE L'EXISTANT

Les biens immobiliers sont souvent dépourvus de plans 2D d’origine – perdus, jamais créés ou inexistants suite à des travaux antérieurs non documentés. Dans ce contexte, nous vous proposons un service de création d’agencement sur plan ou de reconstitution de l’existant à partir de relevés précis, sous forme de plans 2D professionnels.

Objectif

  • obtenir un plan précis et professionnel à fournir au choix aux artisans, futurs acheteurs, agents immobiliers…
  • disposer de l’ensemble des mesures du lieu et éventuellement reconstituer le plan d’implantation électrique existant.

 

Format : plan au format numérique et papier A3 à l’échelle (1:50 ou 1:20)

Déroulement

  1. Relevé de cotes sur place.
  2. Reconstitution du plan en studio.
  3. Envoi du plan au format numérique par email, et en format A3 par voie postale.

 

 

VOUS OBTENEZ

Vous obtenez un plan précis pour réfléchir à votre projet ou faciliter la vente d’un bien par exemple.

 

Tarifs indicatifs (exemple reconstitution 2D)

Plan au sol d’un niveau : 1300€ HT*
Plan étage supplémentaire : 500€ HT*
Plan d’implantation électrique : 160€ HT* par plan

*TVA 20%. Tarif garanti 10 km autour de Nantes. Payable directement sur place par CB ou chèque.

Exemple de plan remis :