Guist'Hau
Rénovation d'un appartement à Nantes - 90 m2
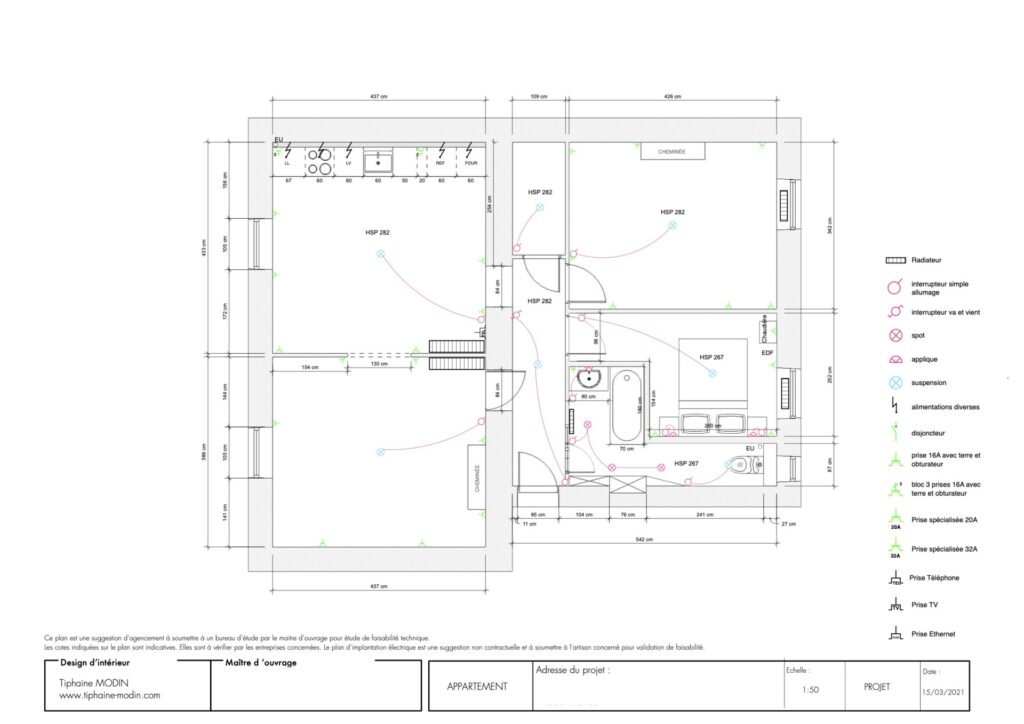
Pour gagner une chambre d’amis dans cet appartement du quartier Guist’hau, B & E ont fait le choix d’intégrer leur cuisine à la salle à manger existante. Nous avons donc souhaité créer une cuisine chic et décorative qui se fait oublier dans l’espace de vie.
Une ambiance enveloppante, mixant modernité et mobilier vintage chiné par les clients. Caissons de cuisine IKEA et façades réalisées sur-mesure.
Crédit photo : Elodie Dugué